東京のホテル。2名用客室でも30㎡の広さ

Chambres pour quatre personnes (accueillent de 3 à 5 personnes)

 
 L’hôtel dispose de deux chambres nommées Katarai (Conversation) et Kutsurogi (Détente). Cette chambre est conçue sur la base de 4 personnes. Le tarif s’applique à partir de 3 personnes, et une personne supplémentaire peut être accueillie pour un total allant jusqu’à 5 personnes. L’intérieur spacieux d’environ 60 m² se compose de deux chambres de style japonais et d’un salon. L’intérieur de style japonais est décoré de zelkova, de bambou et de sal, créant une atmosphère relaxante. La cuisine est équipée d’une cuisinière à gaz à deux feux. La salle de bains et les toilettes sont indépendantes.

 

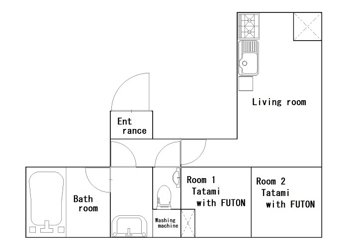
Plan d’étage

Matelas Tatami, chambre de style japonais × 2, vers salon/salle à manger/ cuisine,

salle de bains, toilettes

Capacité

3–5 personnes

Un intérieur décoré de stores japonais traditionnels « SUDARE », de bois naturel et d’une atmosphère japonaise calme et authentique.

Un espace salon et salle à manger meublé d’un canapé.

Des portes coulissantes peuvent également être utilisées pour séparer le salon et la pièce Tatami.

La cuisine est entièrement équipée d’un grand réfrigérateur‑congélateur et d’une cuisinière à gaz à deux feux spacieuse, rendant la cuisine facile et confortable.

Du liquide vaisselle, des éponges et des torchons sont également fournis, donc vous pouvez utiliser la cuisine dès votre arrivée.

Du liquide vaisselle, des éponges et des torchons sont également fournis, donc vous pouvez utiliser la cuisine dès votre arrivée.

Des décorations murales japonaises artisanales fabriquées à partir de bambou noir rare renforcent le charme distinctif de la chambre.

Des étagères en bois de cerisier apportent une touche naturelle, créant une atmosphère japonaise rustique dans tout l’espace.

 

fin papier japonais « washi ».


La chambre tatami 1 peut accueillir jusqu’à 3 FUTONS.
Le nombre de FUTONS fournis varie selon le nombre de personnes dans votre groupe.

Pendant la journée, vous pouvez les ouvrir pour une sensation d’espace, et la nuit, les fermer pour créer un espace privé et chaleureux.

Les chambres Tatami peuvent être séparées par des portes coulissantes.

Frais et tarifs

Les frais et tarifs d’hébergement varient selon le nombre de personnes, l’itinéraire et le nombre de nuits, donc veuillez contacter l’hôtel d’abord avec vos dates souhaitées.
Les enfants de 7 ans et plus sont facturés au même tarif que les adultes.  DEUX ENFANTS de 0 à 6 ans sont comptés comme UN ADULTE, car la quantité de fournitures et de literie (le nombre de futons) dont ils ont besoin est jugée équivalente à celle requise par un adulte.
 
Les réservations peuvent se faire pour un minimum de deux nuits.
Les réservations pour une seule nuit ne sont pas acceptées.

 

 Veuillez nous contacter librement si vous êtes intéressé par une utilisation à long terme.

 
 

Si vous souhaitez effectuer une réservation formelle, veuillez soumettre le formulaire e‑mail suivant.