東京のホテル。10人でも集まれる広いリビングの使えるコンドミニアムは87㎡。キッチンと和室付で足を伸ばしてゆったり過ごせる間取りです
 

Type 3 chambres ; chambres pour familles sur 3 ou 4 générations, familles multiples, grands groupes (3LDK ; accueille jusqu’à 8 personnes)

 
L’hôtel dispose de deux chambres avec des spécifications 3LDK (salon/salle à manger/cuisine). L’une est la plus grande chambre de l’hôtel avec environ 90 m² de surface au sol, et l’autre, située au dernier étage de l’hôtel, dispose d’environ 80 m² de surface au sol plus un petit jardin de pierres / tsubo‑niwa (jardin de cour). (Lors de la réservation, il n’est pas possible de spécifier la chambre de 80 m² ou de 90 m².)
Les deux logements disposent de trois chambres à coucher, ce qui les rend adaptées aux familles sur trois générations ou à plusieurs familles voyageant ensemble. L’une de ces chambres est une chambre de style occidental, et les deux autres sont des chambres de style japonais équipées de tatamis et utilisant des FUTONS (literie japonaise traditionnelle).
 
Dans ces chambres, votre groupe dispose d’un étage entier d’hébergement luxueux rien que pour vous, donc vous pouvez les utiliser sans vous sentir contraints par les autres clients !
 
Le salon peut être utilisé de manière spacieuse en ouvrant le FUSUMA (porte coulissante japonaise décorée) de la chambre tatami de style japonais, ce qui permet d’organiser des rassemblements où de grands groupes peuvent passer beaucoup de temps ensemble. Veuillez utiliser votre séjour pour créer de nombreux souvenirs, en plus des simples visites touristiques.
 

 
 
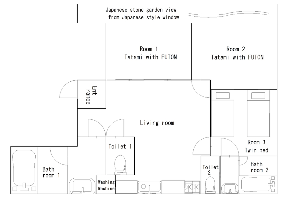
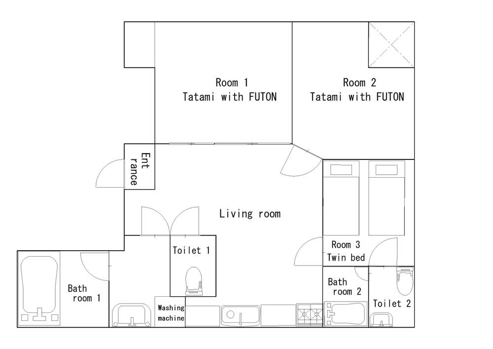
Plan d’étage

90 m² chambre de style japonais :tatami‑mat, chambre de style japonais (1), tatami‑mat, chambre de style japonais (2), chambre twin avec salle de bains (2), toilettes (2), salon/salle à manger/cuisine, salle de bains (1), toilettes (1), fauteuil de massage inclus

80 m² chambre de style japonais :Matelas Tatami, chambre de style japonais (1), tatami‑mat, chambre de style japonais (2), chambre twin avec salle de bains (2), toilettes (2),salon/salle à manger/cuisine, salle de bains (1), toilettes (1), avec jardin de pierres

*Il n’est pas possible de spécifier la chambre de 90 m² ou de 80 m².

Capacité

80 m² : jusqu’à un maximum de 8 adultes

90 m² : jusqu’à un maximum de 9 adultes

Confirmation

Il n’est pas possible de spécifier la chambre de 90 m² ou de 80 m² lors de la réservation.

L’une ou l’autre chambre est attribuée selon la situation le jour de la réservation.

80 m² chambre

90 m² chambre

Type 3LDK (chambre de 80 m²)


La chambre est équipée d’un téléviseur, d’un lecteur DVD et du Wi‑Fi gratuit.
Nous fournissons également une sélection de DVD pour les enfants.
Netflix est également disponible (en utilisant votre propre compte).

Profitez d’une atmosphère japonaise paisible et authentique, avec des touches de design telles qu’une dalle massive de bois naturel à l’entrée, un seuil traditionnel surélevé et des chambres tatami sereines.

La cuisine est entièrement équipée d’un grand réfrigérateur‑congélateur, d’un lave‑vaisselle et d’une bouilloire à eau chaude instantanée.

 

La cuisine est entièrement équipée d’un grand réfrigérateur‑congélateur, d’un lave‑vaisselle et d’une bouilloire à eau chaude instantanée.

Depuis la fenêtre « yukimi shoji » de la chambre Tatami, vous pouvez profiter d’une vue sur le jardin de pierres.
Les yukimi shoji sont des portes coulissantes japonaises traditionnelles élégantes, avec un panneau inférieur en verre, conçues pour permettre de profiter de la vue extérieure en position assise.

Les portes présentent un papier « washi » fin et résistant, décoré de motifs gracieux de fleurs de cerisier. Vous trouverez ici un véritable confort de style japonais qui touche profondément l’esprit japonais.

 

Les lits simples sont mobiles, donc deux peuvent être rapprochés pour créer un espace de couchage king‑size.

Cette chambre dispose également de sa propre télévision où vous pouvez profiter d’une variété de contenus VOD, notamment Netflix, Disney Channel, Prime Video, Hulu, YouTube et Apple TV (avec votre propre compte).


La salle de bains attenante est entièrement équipée d’une douche et d’un espace de lavage de style japonais traditionnel.

Les toilettes réservées à la chambre sont situées en face du lavabo.
Une porte coulissante permet de les séparer de l’espace de lavage.

Jusqu’à 3 jeux de FUTONS peuvent être disposés dans la Chambre Tatami 2.

 

Cette salle de bains de grande taille offre suffisamment d’espace pour que les adultes et les enfants puissent en profiter confortablement ensemble.
Nous avons installé la pomme de douche ReFa, un choix bien connu et populaire au Japon. Elle offre quatre réglages de débit d’eau différents et est connue pour ses microbulles qui nettoient la peau en douceur sans provoquer d’irritation.
Nous vous invitons à l’essayer par vous‑même.

Ces toilettes sont désignées pour l’espace salon.
Toutes nos toilettes sont équipées de washlets.
Veuillez découvrir la haute qualité des toilettes japonaises.

La machine à laver est équipée d’une fonction de séchage, et de la lessive est également fournie.
De plus, la salle de bains dispose d’une fonction de séchage, qui peut parfois sécher vos vêtements plus rapidement.

Spécial hiver !
Nous pouvons fournir un « KOTATSU » sur demande — une table chauffante japonaise traditionnelle, parfaite pour des moments chaleureux en hiver. Pour les familles avec de jeunes enfants, nous conseillons une prudence supplémentaire lors de l’utilisation d’un kotatsu, car son utilisation peut parfois être délicate en termes de sécurité. Comme il y a des précautions d’usage, nous le fournissons sur demande. Veuillez nous contacter librement.

Type 3LDK (chambre de 90 m²)


Le salon dispose d’une table à manger pouvant accueillir six personnes, ainsi que de tabourets supplémentaires sans dossier.
Pour les groupes de plus de six personnes, veuillez également utiliser la table basse (table japonaise traditionnelle ZATAKU et coussin SABUTON).

Notre cuisine spacieuse comprend un grand réfrigérateur‑congélateur et un lave‑vaisselle, ainsi que les derniers appareils tels qu’une bouilloire électrique et un four à micro‑ondes — simple et pratique, parfait pour profiter de plats japonais à emporter.

Ce comptoir, qui accueille chaleureusement tous les clients comme premier point de contact, est fabriqué en véritable bois de zelkova japonais — appelé « KEYAKI » au Japon — et présente une seule dalle massive soigneusement sélectionnée par le propriétaire pour sa qualité.
Ce bois est souvent utilisé pour les comptoirs des restaurants de SUSHI au Japon, apprécié pour sa durabilité et sa beauté.
En hommage discret à l’histoire de la famille, le propriétaire souhaitait préserver un lien avec le passé, car la famille tenait autrefois un restaurant de sushi sur ce même terrain.
L’esprit d’artisanat et de dévouement qui guidait leur travail en tant que chefs de sushi se retrouve aujourd’hui dans l’accueil chaleureux réservé à chaque client.

La Chambre Tatami 1, imprégnée d’une ambiance japonaise authentique, peut accueillir confortablement jusqu’à quatre jeux de futons.

 

Nous avons fourni un fauteuil de massage pour votre confort.
Les fauteuils de massage sont un élément apprécié de la culture des bains japonais — on les trouve couramment dans les bains publics « SENTO ».
Après votre bain, prenez un moment pour vous détendre et profiter d’un instant de relaxation.

Nous avons préparé deux lits simples pour votre usage.
Les lits simples sont mobiles, donc deux peuvent être rapprochés pour créer un espace de couchage king‑size.

La chambre dispose d’une salle de bains et de toilettes privées.
Le lavabo est fabriqué en poterie traditionnelle japonaise « Shigaraki », posé sur une dalle massive de KEYAKI (zelkova japonais).
Le propriétaire a personnellement sélectionné ce beau bois naturel, choisi pour sa forme unique et sa couleur riche, créant un espace de lavage de style japonais soigneusement conçu avec un charme distinctif.

Il s’agit de la salle de bains dédiée à la chambre.
La salle de bains est équipée d’une pomme de douche « ReFa », avec quatre types de jets d’eau micro‑nano bulles qui nettoient la peau en douceur sans provoquer d’irritation. Au Japon, les salles de bains ne servent pas seulement à se laver — ce sont des lieux pour se détendre et profiter d’un moment de calme. Veuillez profiter de cette occasion pour l’essayer.


La Chambre Tatami 2 peut accueillir jusqu’à 3 jeux de FUTONS.

Un tissu présentant un motif de fleurs de cerisier dansantes, soigneusement sélectionné par le propriétaire.


Nous pouvons fournir un « KOTATSU » sur demande — une table chauffante japonaise traditionnelle, parfaite pour des moments chaleureux en hiver. Pour les familles avec de jeunes enfants, nous conseillons une prudence supplémentaire lors de l’utilisation d’un kotatsu, car son utilisation peut parfois être délicate en termes de sécurité. Comme il y a des précautions d’usage, nous le fournissons sur demande. Veuillez nous contacter librement.

Frais et tarifs

Les frais et tarifs d’hébergement varient selon le nombre de personnes, l’itinéraire et le nombre de nuits, donc veuillez contacter l’hôtel d’abord avec vos dates souhaitées.
Les enfants de 7 ans et plus sont facturés au même tarif que les adultes.  DEUX ENFANTS de 0 à 6 ans sont comptés comme UN ADULTE, car la quantité de fournitures et de literie (le nombre de futons) dont ils ont besoin est jugée équivalente à celle requise par un adulte.
 
Les réservations peuvent se faire pour un minimum de deux nuits.
Les réservations pour une seule nuit ne sont pas acceptées.

 

 Veuillez nous contacter librement si vous êtes intéressé par une utilisation à long terme.

 
 

Si vous souhaitez effectuer une réservation formelle, veuillez soumettre le formulaire e‑mail suivant.