東京のホテル。10人でも集まれる広いリビングの使えるコンドミニアムは87㎡。キッチンと和室付で足を伸ばしてゆったり過ごせる間取りです
 

三代或多個家庭用(3LDK(客廳、飯廳和廚房)。最多可容納8人)

 
3LDK(客廳、飯廳和廚房)的客房有2種類型。本館有最大間約90平方公尺的客房,和本館最高樓層有石庭中庭的80平方公尺客房(無法指定90平方公尺或80平方公尺。)
我們提供共3間臥室的客房,適合3代使用或幾個家庭一起旅行使用。
您可以在1間西式房間的床上、或2間和室的棉被上休息。
另外,也是可以包租一整層的豪華設計,不必顧忌其他住房旅客也能安心使用!
打開和室的隔扇,能使用寬敞的客廳,可以製造許多大家聚在一起的時間。讓您除了觀光之外,還留下許多入住期間的回憶。

 
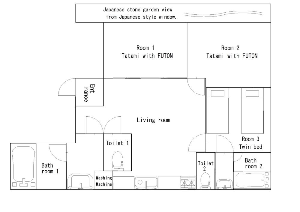
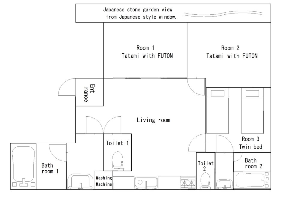
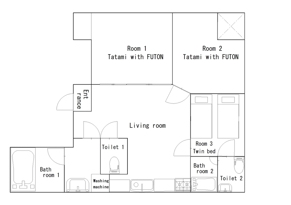
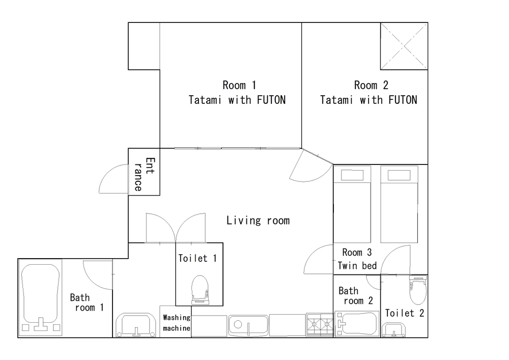
格局

90平方公尺:日式房間(1)、日式房間(2)、雙床房、客廳(餐廳/廚房)、浴室(1)、廁所(1)、浴室(2)、廁所(2)、按摩椅
80平方公尺:日式房間(1)、日式房間(2)、雙床房、客廳(餐廳/廚房)、浴室(1)、廁所(1)、浴室(2)、廁所(2)、石庭景觀
※訂房時無法指定90平方公尺或80平方公尺

容納人數

最多容納9位大人

我們也有顧客是夫妻帶著小孩子,或是三代之旅,或是小團體,舒適地使用這間寬敞的客房

注意事項

訂房時無法指定90平方公尺或80平方公尺。我們將根據當天的情況,為您提供其中一間客房。

80平米客室

90平米客室

 

3LDK(客廳、飯廳和廚房)型(80平方公尺的客房)


客房配備了電視、DVD播放器和免費Wi-Fi。
我們也準備了適合兒童的DVD。
您可以使用Netflix(請使用您自己的帳戶)。

請享受入口處的天然木板、傳統有台階的門檻、安靜的榻榻米房間等設計細節帶來的寧靜而正宗的日本氛圍。
 
廚房配備了大型冰箱、洗碗機和即熱水壺。

 

房間1最多可以鋪設3組被褥。
 
透過舖有榻榻米的“雪見障子”,您可以欣賞到石庭的景色。
雪見障子是帶有下部玻璃板的優雅日本傳統拉門,設計為讓您坐著時也能欣賞外面的景色。
 
門扉採用薄而堅韌的和紙,飾有優美的櫻花圖案。
珍惜日本的心意,請體驗真正的和風舒適。
 

我們為您準備了兩張單人床。
這些單人床是可以移動的,您可以將兩張床併在一起,變成一個特大床的睡眠空間。

房間內也配備了電視,您可以透過您的帳戶觀看Netflix、迪士尼頻道、Prime Video、Hulu、YouTube、Apple TV等各種點播影片內容。

專用浴室配備了淋浴和傳統的日式盥洗區。

臥室專用的廁所位於洗手台對面。
可用拉門將廁所與洗手間隔開。

 

榻榻米房間2最多可以鋪設3組被褥。

 

 

 

這是一間寬敞的浴室,大人和小孩都能舒適放鬆。
我們引進了在日本也很受歡迎的淋浴噴頭「ReFa」。
除了4檔水流調節外,微細氣泡還能溫和清潔肌膚,不刺激肌膚。
請務必親自體驗一次。

這個廁所設在客廳區域。
我們所有的廁所都配有溫水洗淨便座(Washlet)。
請體驗日本高品質的廁所設施。


洗衣機具有烘乾功能,我們也準備了洗衣液。
另外,浴室也有烘乾功能,衣物可能會更快乾燥。

冬季特別服務!
我們可依需求提供「暖桌」。
暖桌是冬季聚會的最佳選擇,也是傳統的日本加熱桌。
※有小孩的家庭,使用暖桌時請特別注意安全。
由於需注意使用安全,暖桌僅提供給提出需求的客人。
如有需要,歡迎隨時與我們聯絡。

3LDK(客廳、飯廳和廚房)型(90平方公尺的客房)


客廳配備了6人座的餐桌和無靠背的凳子。
如果是6人以上的團體使用,也可以使用矮桌(座卓和坐墊)。

寬敞的廚房配備了大型冰箱、洗碗機、電水壺和微波爐等最新家電,您可以輕鬆享用日本料理外帶。

這張櫃檯作為迎接每位賓客的第一接觸點,溫暖地歡迎您的到來。
它採用日本國產的櫸木(在日本被稱為「KEYAKI」)製作而成,使用的是由主人親自挑選的整塊實木板,品質優良、質感非凡。
這種木材在日本經常用於壽司吧台,以其堅固耐用與天然美感而廣受喜愛。
作為對家族歷史的一種低調致敬,主人希望保留與過去的連結——這片土地過去曾是家族經營壽司店的所在。
那份作為壽司職人所秉持的匠心與專注,如今仍透過對每一位賓客的溫馨款待延續著。

充滿正宗日本氛圍的榻榻米房間1,最多可舒適地鋪設4套被褥。

 

為了您的舒適,我們提供了按摩椅。
按摩椅是日本浴文化中備受喜愛的部分—它們常見於公共浴場「銭湯」。
洗完澡後,請花點時間放鬆,享受片刻的輕鬆。
 
我們為您準備了兩張單人床。
這些單人床是可以移動的,您可以將兩張床併在一起,變成一個特大床的睡眠空間。

臥室配有專用浴室和廁所。
洗手台採用日本傳統的信樂燒製成,安裝在整塊欅木板上。
這塊由店主親自精選的美麗天然木材,以其獨特的形狀和深厚的色澤被選中,精心設計,成為具有獨特魅力的日式洗手間。

這是臥室專用的浴室。
配備了具有4種微奈米氣泡水流的「ReFa」淋浴噴頭,能溫和清潔肌膚,不刺激。
在日本,浴室不僅是洗澡的地方,更是放鬆和度過安靜時光的場所。
請務必利用這個機會體驗一下。

榻榻米房間2最多可以鋪設3組被褥。


這是一塊由店主精心挑選的布料,圖案是舞動的櫻花。最初是在我們這裡設計和裁製的。

冬季特別服務!
我們可依需求提供「暖桌」。
暖桌是冬季聚會的最佳選擇,也是傳統的日本加熱桌。
※有小孩的家庭,使用暖桌時請特別注意安全。
由於需注意使用安全,暖桌僅提供給提出需求的客人。
如有需要,歡迎隨時與我們聯絡。

收費方式

由於費用會因人數、時間和住宿天數而不同,因此請先將您想要的時間告知我們。
小學生的費用與大人一樣。2位0歲~學齡前的嬰幼兒以1位大人計算,請選擇費用類型。另外,備品和棉被數量也以此為準。
 
可以受理2晚以上的訂房。
恕不接受預訂1晚。

 

 有長期使用需求的顧客,請隨時與我們聯繫

 
 

如果您想正式訂房,請使用下列的郵件表單寄送郵件。