東京のホテル。2名用客室でも30㎡の広さ

4인용 (3~5인용객실)

 
호텔에는 “가타라이(정다움)”와 ”구쓰로기(편안함)” 라는 이름의 두개의 객실이 있습니다.
본 객실은 기본 4인 기준으로 설계되었으며, 요금은 3인부터 적용됩니다. 추가로 1인까지 투숙 가능하여 최대 5인까지 이용하실 수 있습니다.
약 60㎡ 규모의 넓은 공간으로, 일본식 침실 2칸과 거실로 구성되어 있습니다.
느티나무, 대나무, 사라수나무 등을 활용한 일본식 인테리어로 차분하고 편안한 분위기를 연출합니다.
주방에는 2구 가스레인지가 설치되어 있으며, 욕실과 화장실은 각각 분리된 구조입니다.

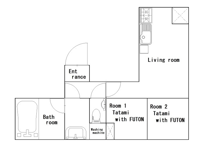
실내 배치

일본식방 타타미 4장 크기✕2칸・LDK 타타미 10.8장 크기・욕실・화장실

정원

3~5인

일본 전통의 ‘스다레(대나무 발)’와 천연목재로 장식된 차분하고 정통 일본식 분위기가 물씬 나는 실내.

소파가 비치된 거실·식사 공간.

미닫이문으로 거실과 다다미방을 구분할 수도 있습니다.

주방에는 대형 냉장고와 냉동고, 넓은 2구 가스레인지가 완비되어 있어 조리가 쉽고 쾌적합니다.

주방에는 대형 냉장고와 넓은 2구 가스레인지가 완비되어 있어 조리가 쉽고 쾌적합니다.
식기 세제, 스펀지, 행주도 준비되어 있어 바로 주방을 이용하실 수 있습니다.

전자레인지와 밥솥이 상시 비치되어 있어 자유롭게 이용하실 수 있습니다.

희소한 흑죽(검은 대나무)으로 만든 수제 일본 벽 장식이 방의 독특한 매력을 높이고 있습니다.

벚나무(사쿠라)로 만든 선반이 자연스러운 분위기를 자아내어 공간 전체에 소박한 일본의 정취를 더합니다.

 

미닫이문에는 얇은 화지에 우아하게 그려진 섬세한 벚꽃 그림이 장식되어 있습니다.


다다미방 1에는 이불 3장까지 펼 수 있습니다.
이불의 수는 이용 인원에 따라 달라집니다.

일본식 방 숙박 시설은 쇼지(미닫이 문)로 구분된 두 개의 방으로 구성되어 있습니다.
낮에는 문을 열어 탁 트인 개방감을, 밤에는 닫아 프라이빗하고 아늑한 공간을 연출할 수 있습니다.

다다미방은 쇼지(미닫이문)로 구분할 수 있습니다.

요금에대하여

인원 및 일정, 숙박일수에 따라 다릅니다. 우선 원하시는 일정에 대해 문의해 주십시오.
초등학생은 어른과 동일. 0세~미취학 영유아 2명을 어른 1인분으로 카운터해서 요금타입을 선택하십시오. 또한, 비품 및 이불 수도 이에 준합니다.
 
2박 이상부터 예약을접수합니다.
1박 예약은 이용 불가입니다.

 

  장기 이용을 원하시는 분은 부담 없이 문의해 주십시오

 
 

정식 예약을 원하시는 분은 아래 이메일 양식을 작성하고 송신하십시오.