LinkIcon이메일 문의 양식 (접수: 평일 10-17시)
HOME | タイプ一覧 | 3LDK客室
 
東京のホテル。10人でも集まれる広いリビングの使えるコンドミニアムは87㎡。キッチンと和室付で足を伸ばしてゆったり過ごせる間取りです
 

3세대 또는 여러 세대를 위한 객실(3LDK, 8명까지 이용 가능)

 
3LDK객실에는 두 가지 타입이 있습니다. 저희 호텔에서 가장 넓은 크기를 자랑하는 약 90㎡의 객실과 호텔 최상층에 위치하며 작은 석조 정원이 포함된 80㎡의 객실입니다(80㎡ 또는 90㎡ 객실은 사전에 지정할 수 없습니다).

3세대 또는 여러 세대가 함께 하는 여행에 적합하도록 총 3개의 침실을 마련했습니다.
1개의 서양식 방 베드룸에는 침대가, 2개의 일본식 방에는 이불이 준비됩니다.
 
또한 다른 숙박객들의 방해를 받지 않고 마음 편히 이용하실 수 있도록 한 층 전체를 단독으로 사용하는 고급스러운 설계를 적용했습니다!
 
일본식 방의 장지문을 열면 더욱 여유로운 공간이 펼쳐지는 거실에서는 여럿이 함께 모이는 시간을 가지기에 좋습니다. 관광뿐 아니라, 가족끼리의 시간도 즐기며 특별한 추억을 남겨 보세요.
 

 
 
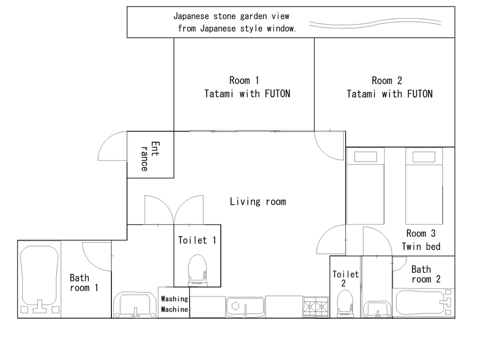
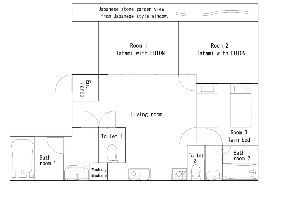
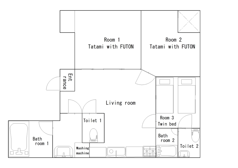
실내 배치

90평방미터: 일본식방 타타미 방(1)・일본식방 타타미 방(2)・트윈베드룸・LDK(거실/다이닝룸/주방) ・욕실(1)・화장실(1)・욕실(2)・화장실(2)・안마의자 있음

80평방미터: 일본식방 타타미 방(1)・일본식방 타타미 방(2)・트윈베드룸・LDK(거실/다이닝룸/주방)・욕실(1)・화장실(1)・욕실(2)・화장실(2)・작은 석조 정원 있음

※90평방미터・80평방미터는지정할수없습니다.

정원

최대 어른 9명까지

어린자녀분과 부부・3대 세대 여행・소인원 그룹 등 넓고 여유로운 이 객실을이용하는 투숙객님도 계십니다.

비고

90평방미터와80평방미터 중 어느 한쪽을지정할수없습니다. 당일 상황에 따라 어느 한 쪽이 배정됩니다.

90평방미터 객실

80평방미터 객실

 

3LDK타입(90평방미터 객실)

거실이 있는 스위트룸

여러분이 가족끼리의오붓한시간을 즐기시려면 필요한 거실.
도쿄 소재 호텔에서 거실이 제공되는 경우는 흔치 않는데, 가족을 위한 숙박 시설로서 이 객실을 마련했습니다. 또 다른 도쿄체류기간을 만끽하십시오.

여유로운 2700사이즈 키친

키친은 2구 가스레인지를 완비, 폭 2m70cm 공간. 많은 사람들이 모여든 경우에도 그릇등을 씻는 작업은 식기세척기에게 맡기시면 됩니다.널찍한 조리 공간은 많은 사람이 모여 함께 요리하기에도 좋습니다. 대형 냉동 냉장고는 연박 또는 장기체류에도 대응. 식기는 물론 커트러리류, 조리기구・프라이팬・냄비등 가정에 있는 일반적인 도구가 모두 갖춰져 있습니다.

대형 욕실에서 피로를 풀자

큰 욕조는 어른2명과어린이1명 한꺼번에 넣는 크기.
샤워 헤드는 파인 버블 사양의 Refa U를 도입하고 있습니다.
4단전환가능 미스트에서 제트까지 즐길 수 있습니다.

베드룸도 있습니다

리모델링된 침실은 차분한 분위기를 가지고 있습니다.
※화장실과 욕실도 있습니다.

트윈 침실에는 전용 세면대가 딸려 있습니다.

넓은 주요 욕실과 화장실 외에도, 침실 전용으로 화장실이 있는 전용 욕실도 마련되어 있습니다.

트윈 침실에는 전용 욕실이 딸려 있습니다.

트윈 침실에는 전용 욕실이 있습니다.
대형 가족용 욕조 외에도 총 2개의 욕실과 화장실이 완비되어 있습니다.
이 구성은 여러 가족 여행이나 친구 여행에 장기 체류하는 데 매우 유용합니다.

일본식방은류큐 타타미를 깔았습니다

일본식방에는 류큐 타타미가 깔려 있어, 일본스러운 멋과 모던함이 느껴집니다.
일본에서는 자타쿠(座卓)라는 앉아 쓰는 책상 앞에 방석을 깔고 앉는 것이 전통 방식입니다. 일본 방식을 체험해 보십시오.

안마의자

이 객실전용 안마의자가 호평입니다.
목욕을 마친 후의 휴식, 가족끼리의오붓한시간을 보내면서 무료로 이용하실 수 있습니다.

세탁기

세면실에 마련된 세탁기.
숙박 투숙객 전용이라 코인 빨래방처럼 시간에 구애될 필요가 없습니다. 세탁용 세제도 완비. 건조 시에는 욕실 건조실 또는 세탁기의 건조 기능이나 실내에 마련된 건조대를 이용하시면 됩니다.

어메니티

각종 어메니티, 어린이용품이 준비되어 있습니다. 여행짐을 줄여서 오십시오.

3LDK타입(80평방미터 객실)

식기세척기가 포함된 오더메이드 키친

메이플 원목 상판의 서랍형 싱크대가 있는 오더메이드 키친. 여행지에서도 언제든지 취사가 가능하도록 2구 가스레인지 등으로 사용 편의성을 높였습니다. 널찍한 키친은 많은 사람이 모여 함께 요리하기에도 여유로운 사이즈입니다. 대형 냉동·냉장고와 전자레인지는 물론, 대··소 크기의 식기류와 냄비부터 채반 볼, 와인 오프너, 채칼까지 다양한 조리 도구가 갖춰져 있습니다.
관광이나 가족끼리의 오붓한 시간을 좀 더 많이 가질 수 있도록 식기세척기도 마련해 놓았습니다.

어른 2명과 아이 1명이 함께 들어갈 수 있는 대형 욕실

투숙객 여러분들로부터 큰 호평을 받고 있는 넉넉하고 여유로운 사이즈의 대형 욕실.
평소에는 좀처럼 함께 들어갈 기회가 없는 할머니, 할아버지와 손자, 손녀의 조합으로 입욕을 즐기시는 분도 많습니다. 샤워 헤드는 파인 버블 사양의 Refa U를 도입하고 있습니다.
4단전환가능 미스트에서 제트까지 즐길 수 있습니다.

거실과일본식방을 한 공간으로 만들 수 있습니다

공간을 널찍하게 꾸민 이유는, 모처럼 여행을 오신 여러분께 관광뿐만 아니라 숙소에서의 즐거운 추억을 선사하고 싶어서.
자기 방에 틀어박혀 지내지 않고 거실 공간에 모여들어서 평소와 다른 회화 등을 나누어주셨으면 합니다.

일본식 방의 장지문 밖으로 보이는 석조 정원

일본식 방은 장지문 등을 여닫는 방식으로 칸을 나눕니다. 그래서 평소에는 열어 두었다가 취침 시에만 공유 공간과 분리하여 각 세대 또는 남녀별로 사생활이 보장되는 독립된 공간을 만들 수 있습니다. 위쪽에는 장지, 아래쪽에는 유리가 달린 독특한 창호를 통해서는 작은 일본식 석조 정원도 감상할 수 있습니다.
 

류큐 타타미를 깔았습니다

일본식방에는 류큐 타타미가 깔려 있어, 일본스러운 멋과 모던함이 느껴집니다.
일본에서는 자타쿠(座卓)라는 앉아 쓰는 책상 앞에 방석을 깔고 앉는 것이 전통 방식입니다. 일본 방식을 체험해 보십시오.

베드룸도 있습니다

리모델링된 침실은 차분한 분위기를 가지고 있습니다.
※화장실과 욕실도 있습니다.

트윈 침실에는 딸린 전용 세면대와 화장실 있습니다.

트윈 침실에서 바로 세면대에 갈 수 있습니다.

트윈 침실에는 욕실이 있습니다.

트윈 침실에는 전용 욕실이 있습니다.
대형 욕실 외에도 표준 크기의 욕실이 하나 더 있어 총 두 개의 욕실이 제공됩니다.
이는 여러 가족과 함께 장기 체류하는 데 이상적입니다.

일본 스타일 장식

시설내 곳곳에 일본 스타일로 장식을 하였습니다. 모두 신사 절 건축을 전문으로 하는 목사들이 장식을 담당. 대도시에 있으면서 일본전통을 체감할 수 있도록 꾸몄습니다.

어메니티・타월완비

타월,시트등 린넨류는 언제든 무료로 교환해 드립니다. 샴푸, 린스등 어메니티도 완비.

요금에대하여

인원 및 일정, 숙박일수에 따라 다릅니다. 우선 원하시는 일정에 대해 문의해 주십시오.
초등학생은 어른과 동일. 0세~미취학 영유아 2명을 어른 1인분으로 카운터해서 요금타입을 선택하십시오. 또한, 비품 및 이불 수도 이에 준합니다.
 
2박 이상부터 예약을접수합니다.
1박 예약은 이용 불가입니다.

 

  장기 이용을 원하시는 분은 부담 없이 문의해 주십시오

 
 

정식 예약을 원하시는 분은 아래 이메일 양식을 작성하고 송신하십시오.