東京のホテル。10人でも集まれる広いリビングの使えるコンドミニアムは87㎡。キッチンと和室付で足を伸ばしてゆったり過ごせる間取りです
 

3-bedroom type; Guestrooms for 3or4-Generation Families, Multiple Families,large group
(3LDK; accommodates up to 8 people)

 
The hotel has two guestrooms with 3LDK (living room/dining room/kitchen) specifications. One is the largest room in the hotel with approximately 90 m2 of floor space, and the other, on the top floor of the hotel, has approximately 80 m2 of floor space plus a small stone garden/tsubo-niwa (courtyard garden). (When booking, the 80 m2 or 90 m2 guestroom cannot be specified.)
Both guestrooms have three bedrooms to make them suitable for three-generation families or for several families traveling together. One of these rooms is a Western-style bedroom, and the other two are Japanese-style rooms furnished with futons.
 
In these guestrooms, your party has an entire floor of luxurious accommodation all to yourselves, so you can use them without feeling constrained by the other guests!
 
The living room can be used spaciously by opening up the fusuma doors of the Japanese-style room, so you can hold gatherings where large groups of people can spend a lot of time together. Please use your stay to create lots of memories, besides just sightseeing.
 

 
 
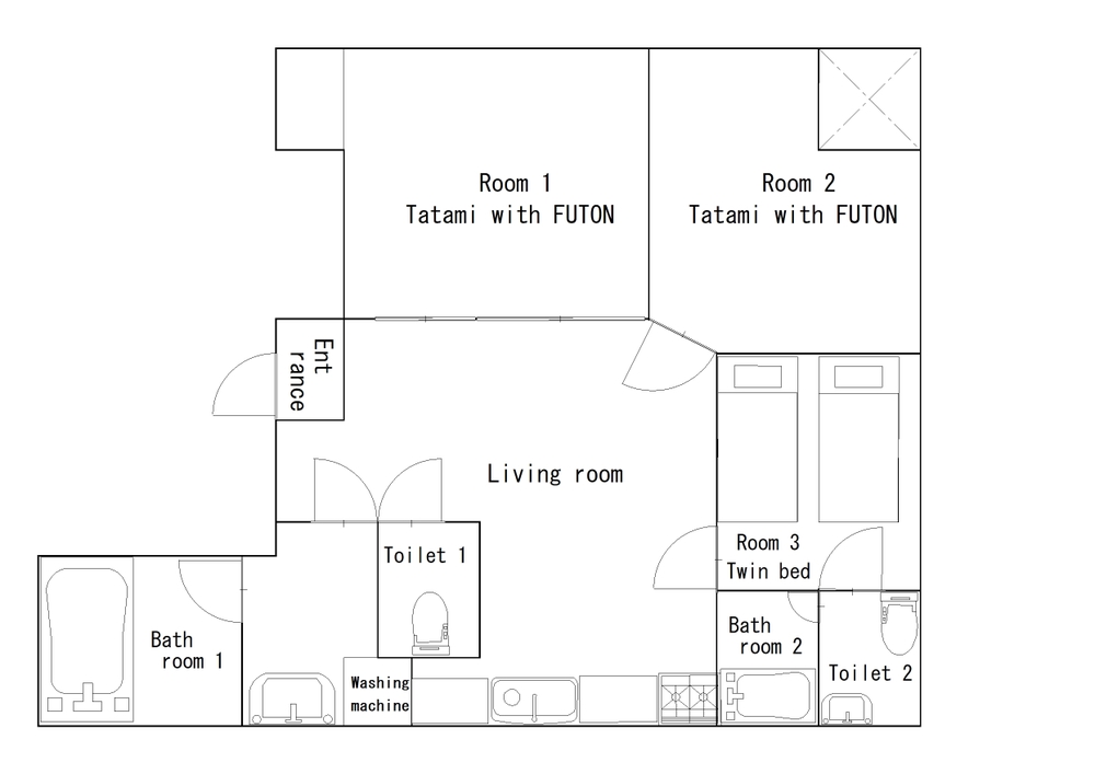
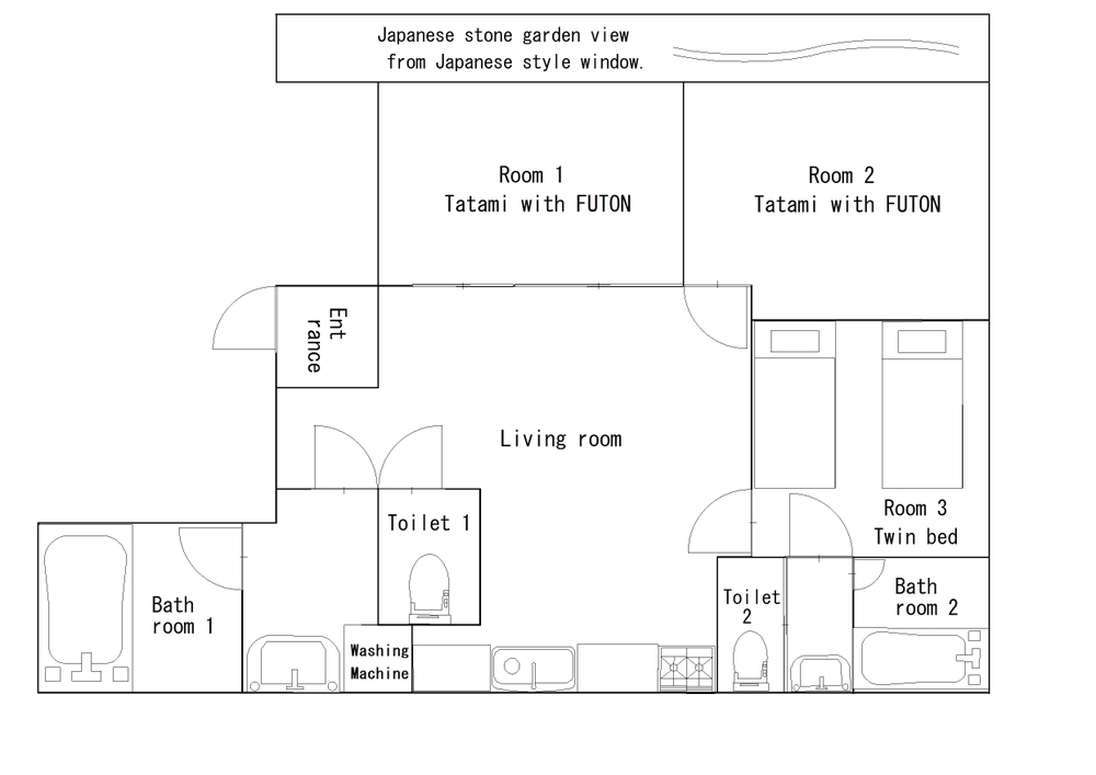
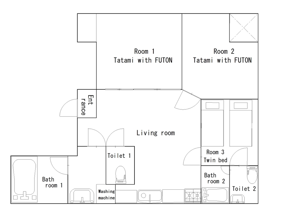
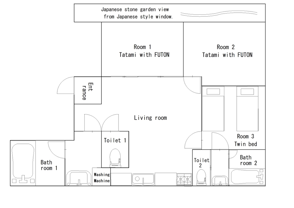
Floor plan

90㎡ Japanese-style guestroom: tatami-mat Japanese-style room(1), tatami-mat Japanese-style room(2), twin bed room, tatami-mat size LDK (living room/dining room/kitchen), bathroom(1), toilet(1), bathroom(2), toilet(2), massage chair included

80㎡ Japanese-style guestroom: tatami-mat Japanese-style room(1), tatami-mat Japanese-style room(2), twin bed room, tatami-mat size LDK (living room/dining room/kitchen), bathroom(1), toilet(1), bathroom(2), toilet(2), with stone garden

*The 90㎡ or 80㎡ guestroom cannot be specified.

Capacity

Up to a maximum of 9 adults

Guests can stay in this spacious room as parents with small children, couples, three-generation families, or in other small groups.

Confirmation

The 90㎡ or 80㎡ guestroom cannot be specified when booking accommodation. Either room will be allocated depending on the situation on the day of booking.

80 m2 Guestroom

90 m2 Guestroom

3LDK Type (80 m2 Guestroom)


The room is equipped with a TV, DVD player, and free Wi-Fi.
We also provide a selection of DVDs for children.
Netflix is available as well (using your own account)

Enjoy a peaceful and authentic Japanese atmosphere, with design touches like a solid slab of natural wood at the entrance, a traditional step-up threshold, and serene tatami rooms.

The kitchen is fully equipped with a large refrigerator-freezer, a dishwasher, and an instant hot water kettle.

 

Up to three sets of futons can be laid out in Room 1 as well.

From the“yukimi shoji”window in the tatami room, you can enjoy a view of the stone garden.
Yukimi shoji are elegant traditional Japanese sliding doors with a lower glass panel, designed to allow you to enjoy views of the outdoors while seated.

The doors feature thin, strong “washi” paper decorated with graceful cherry blossom designs. Here, you’ll find genuine Japanese-style comfort that truly appeals to the Japanese spirit.

 

We have prepared two single beds for your use.
The single beds are movable, so two can be joined together to create a king-size sleeping area.

This room also has its own TV where you can enjoy a variety of VOD content including Netflix, Disney Channel, Prime Video, Hulu, YouTube, and Apple TV.(on your account)


The en-suite bathroom is fully equipped with a shower and a traditional Japanese-style washing area.

The toilet exclusively for the bedroom is located opposite the sink.
A sliding door allows you to separate it from the washroom area.

Up to 3 FUTON sets can be laid out in Tatami Room 2.

 

This generously sized bathroom provides enough room for both adults and children to enjoy comfortably together.
We have installed the ReFa shower head, a well-known and popular choice in Japan. It offers four different water flow settings and is known for its microbubbles that gently cleanse the skin without causing irritation.
We invite you to experience it for yourself.

This toilet is designated for the living room area.
All our toilets are equipped with washlets.
Please experience the high quality of Japanese toilets.

The washing machine comes with a drying function, and laundry detergent is also provided.
Additionally, the bathroom has a drying feature, which may dry your clothes faster in some cases.

Winter special
We can provide a "KOTATSU" upon request a traditional Japanese heated table perfect for cozy winter gatherings. *For families with young children, we kindly advise extra caution when using a kotatsu, as it can sometimes be tricky to use safely. Since there are usage precautions, we provide it on a request basis. Please feel free to contact us.

3LDK Type (90 m2 Guestroom)


The living room features a dining table that seats six, along with additional backless stools.
For groups of more than six, please feel free to use the low table (Japanese traditional ZATAKU table and SABUTON cousion) as well.

Our spacious kitchen features a large fridge-freezer and a dishwasher, along with the latest appliances such as an electric kettle and microwave —Easy and convenient, perfect for enjoying takeaway Japanese food.

This counter, which warmly welcomes all guests as the first point of contact, is made from genuine Japanese zelkova wood—called “KEYAKI” in Japan—and features a single solid slab carefully selected by the owner for its quality.
This wood is often used for sushi counters in Japan, valued for its durability and beauty.
As a subtle tribute to the family’s history, the owner wanted to preserve a connection to the past, as the family once ran a sushi restaurant on this very land.
The spirit of craftsmanship and dedication that guided their work as sushi chefs continues today in the warm welcome extended to every guest.

Tatami Room 1, filled with authentic Japanese ambiance, can comfortably accommodate up to four futon sets.

 

We’ve provided a massage chair for your comfort.
Massage chairs are a beloved part of Japanese bath culture — they’re commonly found in public baths “SENTO”.
After your bath, take some time to unwind and enjoy a moment of relaxation.

We have prepared two single beds for your use.
The single beds are movable, so two can be joined together to create a king-size sleeping area.

The bedroom has a private bathroom and toilet.
The washbasin is crafted from traditional Japanese “Shigaraki” pottery, set atop a solid slab of KEYAKI (Japanese zelkova) wood.
The owner personally sourced this beautiful natural wood, chosen for its unique shape and rich color, creating a carefully designed Japanese-style washroom with a distinctive charm.


This is the bathroom dedicated to the bedroom.
The bathroom is equipped with a “ReFa” shower head, featuring four types of micro-nano bubble water flows that gently cleanse your skin without causing any irritation. In Japan, bathrooms are more than just for washing—they’re a place to relax and enjoy some quiet time.
Please take this opportunity to try it out.

Tatami Room 2 can accommodate up to 3 sets of FUTON.

A fabric featuring a pattern of dancing cherry blossoms, carefully selected by the owner. It was originally designed and tailored here at our establishment.


Winter special
We can provide a "KOTATSU" upon request a traditional Japanese heated table perfect for cozy winter gatherings. *For families with young children, we kindly advise extra caution when using a kotatsu, as it can sometimes be tricky to use safely. Since there are usage precautions, we provide it on a request basis. Please feel free to contact us.

Fees and Charges

Accommodation fees and charges vary according to the number of people, the itinerary, and the number of nights, so please contact the hotel first with your desired dates.
Children age of 7 and older are charged at the same rate as adults.  TWO CHILDREN from 0 years old to 6 yrs old are counted as ONE ADULT, as the quantity of supplies and bedding (the number of futons) they require is judged to be about same as is required by one adult.
 
Reservations can be made for a minimum of two nights.
Reservations for one night only are not accepted.

 

 Please feel free to contact us if you are interested in long-term use.

 
 

If you wish to make a formal reservation, please submit the following email form.