東京のホテル。10人でも集まれる広いリビングの使えるコンドミニアムは87㎡。キッチンと和室付で足を伸ばしてゆったり過ごせる間取りです
 

适合三代同堂或多户家庭(三室一厅,最多可居住8人)

 
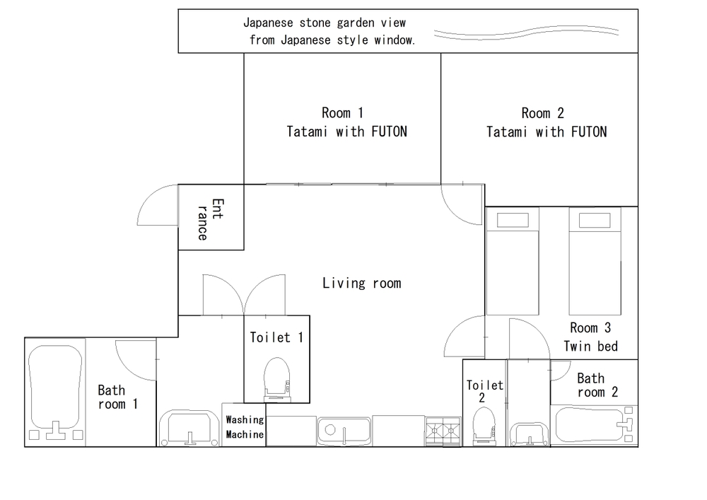
三室一厅客房分为两种类型,分别是本酒店面积最大的约90平方米的客房,以及最上层附带石头花园的80平方米客房(无法在80或90平方米客房中自由选择)。
为了便于三代同堂或多户家庭共同出游,我们准备了三间卧室。
其中一间是设有床铺的西式房间,另外两间是需要铺设被褥的日式房间。
直接包揽整层的奢侈设计让您在居住时无需担心被其他旅客打扰!
打开日式房间的推拉门,就能让起居室更加宽敞,打造更多与家人齐聚一堂的欢乐时光。除了外出旅游,希望各位旅客也能留下更多关于入住酒店期间的美好回忆。
 

 
 
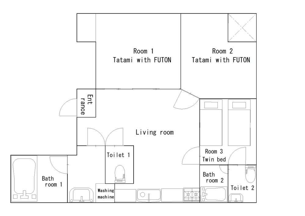
房间布局

90平方米:日式房间(1)、日式房间(2)、双床房、客厅(餐厅/厨房)、浴室(1)、卫生间(1)、浴室(2)、卫生间(2)、附带按摩椅

80平方米:日式房间(1)、日式房间(2)、双床房、客厅(餐厅/厨房)、浴室(1)、卫生间(1)、浴室(2)、卫生间(2)、附带石头花园

※无法在80或90平方米客房中自由选择

定员

80m2: 最多容纳8位成年人

90m2: 最多容纳9位成年人

请注意

订房时无法指定90平方米或80平方米。我们将根据当天的情况,为您提供其中一间客房。如果您的团队可能最多有9人,请在预订时事先通知我们。

80平方米客房

90平方米客房

三室一厅型(80平方米客房)


客房配备了电视、DVD播放器和免费Wi-Fi。
我们还准备了适合儿童的DVD。
您可以使用Netflix(请使用您自己的账户)。

请享受入口处的天然木板、传统有台阶的门槛、安静的榻榻米房间等设计细节带来的宁静而正宗的日本氛围。

厨房配备了大型冰箱、洗碗机和即热水壶。

 

房间1最多可以铺设3套被褥。

通过铺有榻榻米的“雪见障子”,您可以欣赏到石庭的景色。
雪见障子是带有下部玻璃板的优雅日本传统拉门,设计为让您坐着时也能欣赏外面的景色。

门扉采用薄而坚韧的和纸,饰有优美的樱花图案。
珍视日本的心意,请体验真正的和风舒适。

 

我们为您准备了两张单人床。
这些单人床是可以移动的,您可以将两张床合在一起,变成一个特大床的睡眠空间。

房间内也配备了电视,您可以通过您的账户观看Netflix、迪士尼频道、Prime Video、Hulu、YouTube、Apple TV等各种点播视频内容。


专用浴室配备了淋浴和传统的日式洗浴区。

卧室专用的厕所位于洗手台对面。
可以用拉门将厕所与洗手间隔开。

榻榻米房间2最多可以铺设3套被褥。

 

这是一个宽敞的浴室,大人和孩子都能舒适放松。
我们引进了在日本也很受欢迎的淋浴喷头“ReFa”。
除了4档水流调节外,微细气泡还能温和清洁肌肤,不刺激皮肤。
请务必亲自体验一次。

这个厕所设在客厅区域。
我们所有的厕所都配有温水洗净便座(Washlet)。
请体验日本高品质的厕所设施。

洗衣机具有烘干功能,我们也准备了洗衣液。
另外,浴室也有烘干功能,衣物可能会更快干燥。

冬季特别服务!
我们可根据需求提供“暖桌”。
暖桌是冬季聚会的最佳选择,也是传统的日本加热桌。
※有小孩的家庭,使用暖桌时请特别注意安全。
由于需要注意使用安全,暖桌仅提供给提出需求的客人。
如有需要,欢迎随时与我们联系。

三室一厅型(90平方米客房)


客厅配备了6人座的餐桌和无靠背的凳子。
如果是6人以上的团体使用,也可以使用矮桌(座卓和坐垫)。

宽敞的厨房配备了大型冰箱、洗碗机、电水壶和微波炉等最新家电,您可以轻松享用日本料理外卖。

这张柜台作为迎接每位宾客的第一接触点,温暖地欢迎您的到来。
它采用日本国产的榉木(在日本被称为「KEYAKI」)制作而成,使用的是由主人亲自挑选的整块实木板,品质优良、质感非凡。
这种木材在日本经常用于寿司吧台,以其坚固耐用与天然美感而广受喜爱。作为对家族历史的一种低调致敬,主人希望保留与过去的连结——这片土地过去曾是家族经营寿司店的所在。
那份作为寿司职人所秉持的匠心与专注,如今仍通过对每一位宾客的温馨款待延续着。

充满正宗日本氛围的榻榻米房间1,最多可舒适地铺设4套被褥。

 

为了您的舒适,我们提供了按摩椅。
按摩椅是日本浴文化中备受喜爱的部分—它们常见于公共浴场“銭湯”。
洗完澡后,请花些时间放松,享受片刻的轻松。

我们为您准备了两张单人床。
这些单人床是可以移动的,您可以将两张床合在一起,变成一个特大床的睡眠空间。

卧室配备专用浴室和厕所。
洗手台采用日本传统的信乐烧制成,安装在整块欅木板上。
这块由店主亲自精选的美丽天然木材,以其独特的形状和深厚的色泽被选中,精心设计,成为具有独特魅力的日式洗手间。

这是卧室专用的浴室。
配备了具有4种微纳米气泡水流的“ReFa”淋浴喷头,能温和清洁肌肤,不刺激。
在日本,浴室不仅是洗澡的地方,更是放松和度过安静时光的场所。
请务必利用这个机会体验一下。

榻榻米房间2最多可以铺设3套被褥。

这是一块由店主精心挑选的布料,图案是舞动的樱花。

冬季特别服务!
我们可根据需求提供“暖桌”。
暖桌是冬季聚会的最佳选择,也是传统的日本加热桌。
※有小孩的家庭,使用暖桌时请特别注意安全。
由于需要注意使用安全,暖桌仅提供给提出需求的客人。
如有需要,欢迎随时与我们联系。

关于费用

具体费用取决于人数、日程和住宿天数,请先联系我们,告知您想要入住的日程。 
小学生费用与成年人相同。计算费用时,两名0岁~未上小学的婴幼儿算作一名成年人。各类物件和被褥数量也会以此计算。
 
可接受两晚以上的预订。
恕不受理只住一晚的预订。

 

 需要长期入住的旅客请随时与我们联系

 
 

需要正式预订的旅客请通过以下邮件表单与我们联系。