東京のホテル。10人でも集まれる広いリビングの使えるコンドミニアムは87㎡。キッチンと和室付で足を伸ばしてゆったり過ごせる間取りです
 

Type 3 chambres ; chambres pour familles sur 3 ou 4 générations, familles multiples, grands groupes ( accueille jusqu’à 8 personnes)

 
L’hôtel dispose de deux chambres avec des spécifications 3LDK (salon/salle à manger/cuisine). L’une est la plus grande chambre de l’hôtel avec environ 90 m² de surface au sol, et l’autre, située au dernier étage de l’hôtel, dispose d’environ 80 m² de surface au sol plus un petit jardin de pierres / tsubo‑niwa (jardin de cour). 
Les deux logements disposent de trois chambres à coucher, ce qui les rend adaptés aux familles sur trois générations ou à plusieurs familles voyageant ensemble. L’une de ces chambres est une chambre de style occidental, et les deux autres sont des chambres de style japonais équipées de tatamis et utilisant des FUTONS (literie japonaise traditionnelle).
 
Dans ces logements, votre groupe dispose d’un étage entier d’hébergement luxueux rien que pour vous, donc vous pouvez les utiliser sans vous sentir contraints par les autres clients !
 
Le salon peut être utilisé de manière spacieuse en ouvrant le FUSUMA (porte coulissante japonaise décorée) de la chambre tatami de style japonais, ce qui permet d’organiser des rassemblements où de grands groupes peuvent passer beaucoup de temps ensemble. Veuillez utiliser votre séjour pour créer de nombreux souvenirs, en plus des simples visites touristiques.
 

 
 
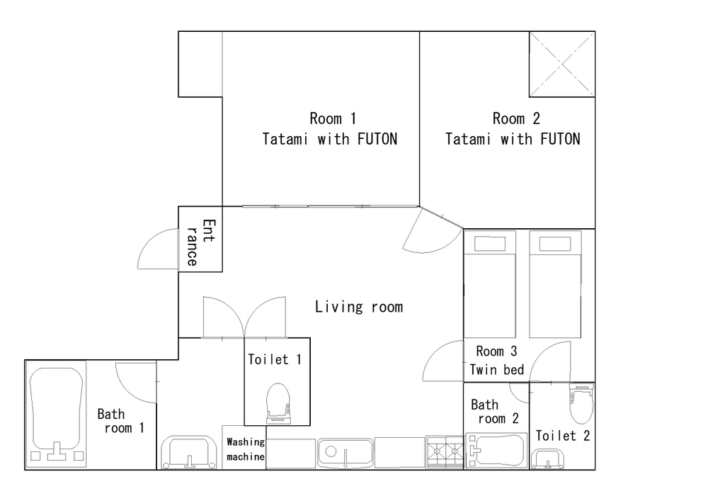
Plan d’étage

Chambre 1 : chambre de style japonais avec tatamis et futons, pouvant accueillir jusqu’à 4 personnes

Chambre 2 : chambre de style japonais avec tatamis et futons, pouvant accueillir jusqu’à 3 personnes

Chambre 3 : chambre twin avec salle de bain attenante (baignoire et douche) et toilettes

Espace LDK (salon, salle à manger et cuisine), salle de bain spacieuse avec baignoire et douche, et toilettes

*Seule cette chambre dispose d’un jardin japonais de style rocaille.

Capacité

jusqu’à un maximum de 9 adultes

Chambre de 90㎡


Le salon dispose d’une table à manger pouvant accueillir six personnes, ainsi que de tabourets supplémentaires sans dossier.
Pour les groupes de plus de six personnes, veuillez également utiliser la table basse (table japonaise traditionnelle ZATAKU et coussin SABUTON).

Notre cuisine spacieuse comprend un grand réfrigérateur‑congélateur et un lave‑vaisselle, ainsi que les derniers appareils tels qu’une bouilloire électrique et un four à micro‑ondes — simple et pratique, parfait pour profiter de plats japonais à emporter.

Ce comptoir, qui accueille chaleureusement tous les clients comme premier point de contact, est fabriqué en véritable bois de zelkova japonais — appelé « KEYAKI » au Japon — et présente une seule dalle massive soigneusement sélectionnée par le propriétaire pour sa qualité.
Ce bois est souvent utilisé pour les comptoirs des restaurants de SUSHI au Japon, apprécié pour sa durabilité et sa beauté.
En hommage discret à l’histoire de la famille, le propriétaire souhaitait préserver un lien avec le passé, car la famille tenait autrefois un restaurant de sushi sur ce même terrain.
L’esprit d’artisanat et de dévouement qui guidait leur travail en tant que chefs de sushi se retrouve aujourd’hui dans l’accueil chaleureux réservé à chaque client.

La Chambre Tatami 1, imprégnée d’une ambiance japonaise authentique, peut accueillir confortablement jusqu’à quatre jeux de futons.

 

Nous avons fourni un fauteuil de massage pour votre confort.
Les fauteuils de massage sont un élément apprécié de la culture des bains japonais — on les trouve couramment dans les bains publics « SENTO ».
Après votre bain, prenez un moment pour vous détendre et profiter d’un instant de relaxation.

Nous avons préparé deux lits simples pour votre usage.
Les lits simples sont mobiles, donc deux peuvent être rapprochés pour créer un espace de couchage king‑size.

La chambre dispose d’une salle de bains et de toilettes privées.
Le lavabo est fabriqué en poterie traditionnelle japonaise « Shigaraki », posé sur une dalle massive de KEYAKI (zelkova japonais).
Le propriétaire a personnellement sélectionné ce beau bois naturel, choisi pour sa forme unique et sa couleur riche, créant un espace de lavage de style japonais soigneusement conçu avec un charme distinctif.

Il s’agit de la salle de bains dédiée à la chambre.
La salle de bains est équipée d’une pomme de douche « ReFa », avec quatre types de jets d’eau micro‑nano bulles qui nettoient la peau en douceur sans provoquer d’irritation. Au Japon, les salles de bains ne servent pas seulement à se laver — ce sont des lieux pour se détendre et profiter d’un moment de calme. Veuillez profiter de cette occasion pour l’essayer.


La Chambre Tatami 2 peut accueillir jusqu’à 3 jeux de FUTONS.

Un tissu présentant un motif de fleurs de cerisier dansantes, soigneusement sélectionné par le propriétaire.


Ceci est la salle de bain du côté du salon. C'est une salle de bain relativement grande, ce qui la rend pratique pour que les adultes et les enfants prennent un bain ensemble.

Cette salle de bain est celle située du côté du salon. Toutes les salles de bain de cet établissement sont équipées d'un bidet. Faites l'expérience de la haute qualité des toilettes japonaises.

La machine à laver est également prévue dans la chambre d'amis. Pour le séchage, vous pouvez utiliser la fonction de séchage de la machine à laver, ou vous pouvez également utiliser le séchage dans la salle de bain.

Frais et tarifs

Les frais et tarifs d’hébergement varient selon le nombre de personnes, l’itinéraire et le nombre de nuits, veuillez donc d'abord contacter l’hôtel  avec vos dates souhaitées.
Les enfants de 7 ans et plus sont facturés au même tarif que les adultes.  DEUX ENFANTS de 0 à 6 ans sont comptés comme UN ADULTE, car la quantité de fournitures et de literie (le nombre de futons) dont ils ont besoin est jugée équivalente à celle requise par un adulte.
 
Les réservations peuvent se faire pour un minimum de deux nuits.
Les réservations pour une seule nuit ne sont pas acceptées.

 

 Veuillez nous contacter librement si vous êtes intéressé par une utilisation à long terme.

 
 

Si vous souhaitez effectuer une réservation formelle, veuillez soumettre le formulaire e‑mail suivant.