東京のホテル。2名用客室でも30㎡の広さ

4人用(可容納3~4人)

 
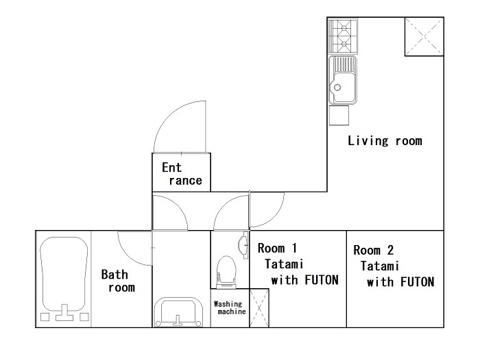
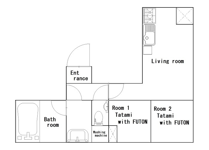
4人用的客房“Katarai (談心)”和”Kutsurogi (放鬆)”。客房擁有約60平方公尺的寬敞空間,是由2間和室與客廳空間所組成。除了櫸木之外,還使用竹子、沙羅樹和松樹來打造日式平靜的空間。廚房設置二口瓦斯爐。獨立的浴室、廁所、洗手台。您可以舖上或收起棉被,靈活地使用房間。也能提供2人長期入住。

格局

2間4張榻榻米的和室、10.8張榻榻米的LDK(客廳、飯廳和廚房)、浴室、廁所

容納人數

3〜4人

以日本傳統的「簾」和天然木裝飾的客室,洋溢著沉穩而正宗的和風氛圍。

配有沙發的客廳和餐廳區域。

也可以用拉門把客廳和榻榻米房間隔開。

廚房配備了大型冰箱和冷凍櫃,以及寬敞的雙口瓦斯爐,烹飪簡單又舒適。

我們還提供洗碗精、海綿和抹布,您可以立即使用廚房。

微波爐和電鍋常設在廚房,可自由使用。

由稀有的黑竹手工製作的日本牆飾提升了房間獨特的魅力。

用櫻桃木製成的架子營造出自然的氛圍,使整個空間散發出質樸的日本氣息。

 

拉門上繪有優美的櫻花畫,畫在薄薄的和紙上,細膩精緻。


榻榻米房間最多可鋪3床被褥。
被褥的數量依住宿人數而不同。

和式住宿設施由兩間由障子隔開的房間組成。
白天打開,營造開放感,晚上關閉,成為私密舒適的空間。

榻榻米房間可以用障子隔開。

收費方式

由於費用會因人數、時間和住宿天數而不同,因此請先將您想要的時間告知我們。
小學生的費用與大人一樣。2位0歲~學齡前的嬰幼兒以1位大人計算,請選擇費用類型。另外,備品和棉被數量也以此為準。
 
可以受理2晚以上的訂房。
恕不接受預訂1晚。

 

 有長期使用需求的顧客,請隨時與我們聯繫

 
 

如果您想正式訂房,請使用下列的郵件表單寄送郵件。